Skip to main content

Bauliche Zielplanung

Belastbare Rahmenbedingungen schaffen

Mit der baulichen Zielplanung übersetzen wir Ihre Strategie aus der Betriebsorganisationsplanung in bauliche Rahmenbedingungen. Definierte Qualitäten und Quantitäten werden in Flächen, Standardräume, Grundrissstrukturen, Kosten und Zeit übersetzt. In der Machbarkeitsstudie validieren wir die Rahmenbedingungen und überprüfen sie auf Potenziale und Risiken. 

Baulich technische Bestandsanalyse 

Die baulich technische Bestandsanalyse erfolgt in der Regel parallel zur funktionalen Bestandsanalyse. Ziel ist es, den Nutzwert des jeweiligen Bauteils zu erkennen und auf seine Zukunftsfähigkeit hin zu überprüfen. Im Fokus stehen hier wesentliche technische Mängel und Stärken sowie die statische Tragstruktur. In Verbindung mit der funktionalen Bestandsanalyse lassen sich die Handlungsbedarfe ableiten.

 

Flächenrahmen 

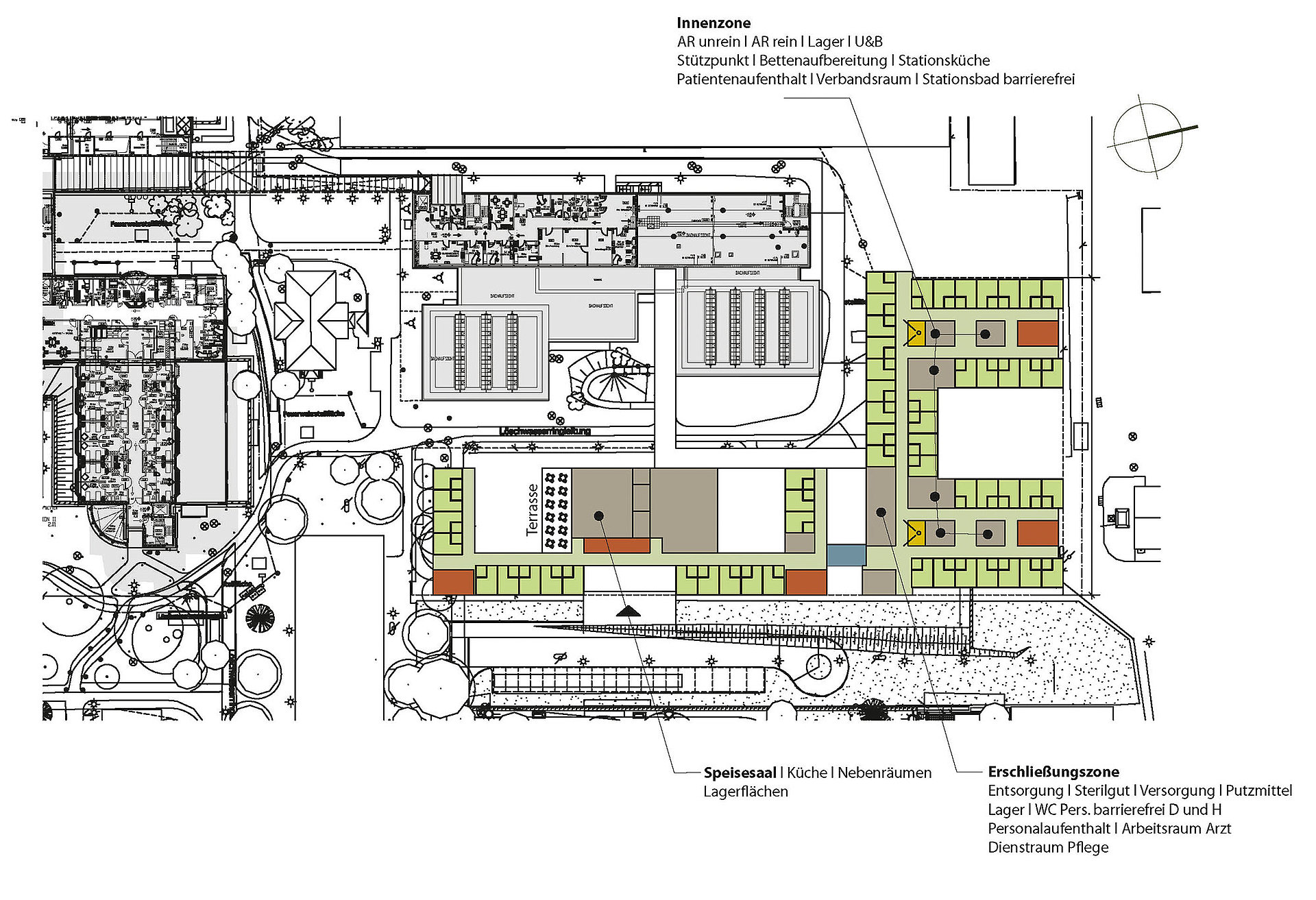
Mit dem Flächenrahmen können bereits im frühen Projektstadium Aussagen zu Flächenbedarfen getroffen werden. Auf Grundlage von zuvor festgelegten Organisationsstrukturen der zu planenden Bereiche werden mittels Benchmarks aus Vergleichskliniken Flächen abgeleitet. Hierbei ist die Anpassung dieser Benchmarks auf die definierten Ziele erforderlich, denn veränderte Rahmenbedingungen haben stets Einfluss auf den tatsächlichen Flächenbedarf. Hinsichtlich Stationsgröße, Interventionszone oder Zentral-OP müssen die grundlegenden Strukturen feststehen, um belastbare Aussagen treffen zu können.

 

Einzelraumprogramme 

In der Einzelraumprogrammierung erfolgt die Auflistung jedes einzelnen Raumes, der innerhalb eines Funktionsbereiches erforderlich ist. Für die Dimensionierung der einzelnen Räume werden, in der Regel in Nutzergesprächen, die Abläufe und Bewegungsprofile (UseCases) sowie die raumdefinierende Ausstattung der Räume definiert. Auf dieser Datenbasis werden im Anschluss die erforderlichen Flächen hergeleitet. Das Einzelraumprogramm dient in den nachfolgenden Planungsphasen als Grundlage.

Vertiefend kann auch ein Raumbuch erstellt werden, in dem weitere Rahmenbedingungen festgelegt werden. 

 

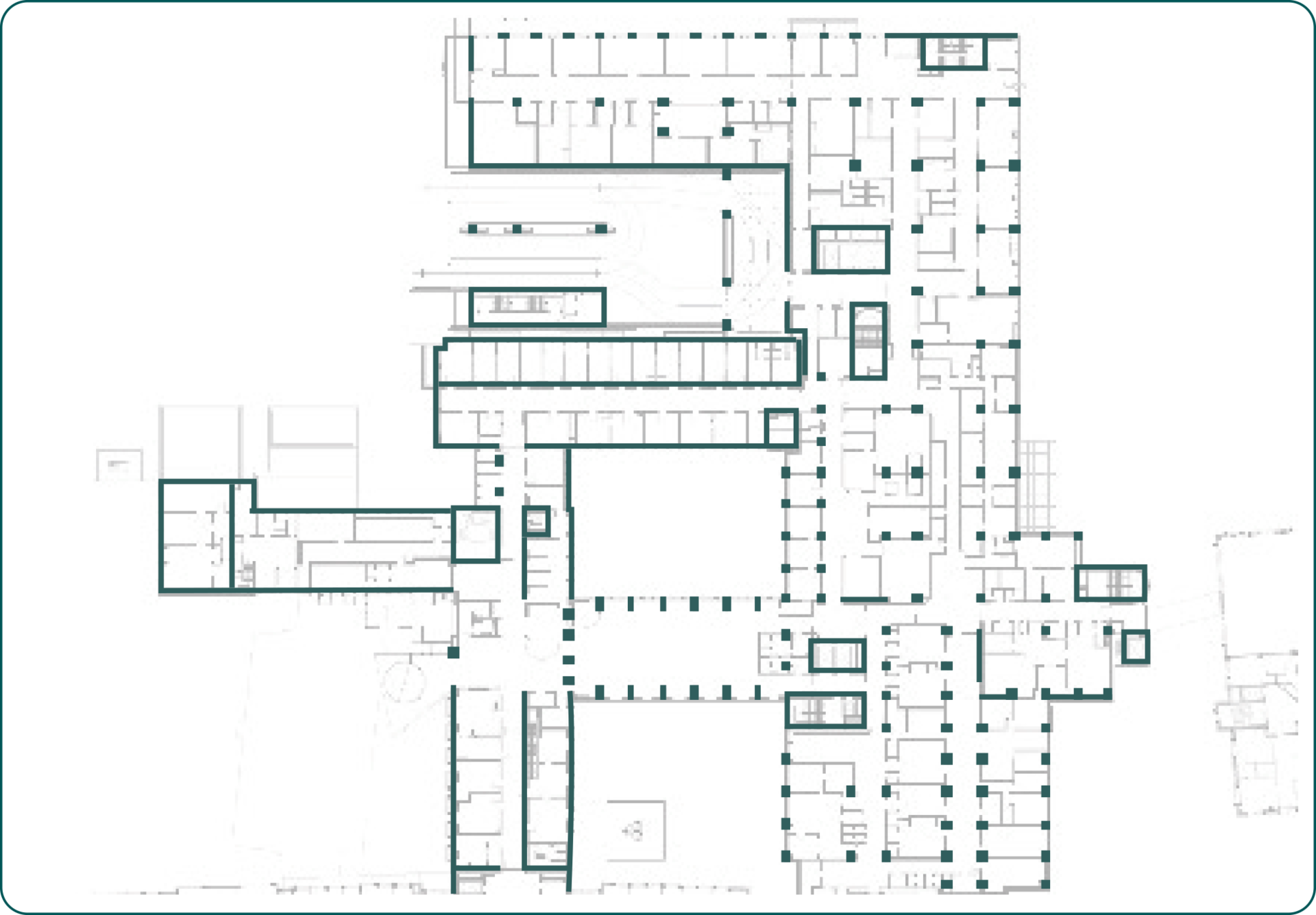
Konzeptskizze Machbarkeitsstudie

Die in der Betriebsorganisations- & Bedarfsplanung definierten Ziele und die hergeleiteten Flächenbedarfe werden in Konzeptskizzen in bauliche Strukturen übersetzt. Ein Variantenvergleich zeigt mögliche Lösungsansätze. Besonders im Bestand sind häufig nur Kompromisslösungen möglich, da beispielsweise die technische oder statische Struktur die Entwicklung beeinträchtigen.

Der Bauablauf spielt im Krankenhausbau eine besondere Rolle, da die Baumaßnahmen stets im laufenden Betrieb erfolgen. Hier ist jeder Bauabschnitt auf seine Betriebssicherheit (technische, funktionale und logistische Erschließung) darzustellen und zu untersuchen. Auch die Dauer der Baumaßnahmen kann hier entscheidenden Einfluss auf die Betriebssicherheit bzw. das Patienten- und Mitarbeiterwohl haben.
Eine objektive Bewertung, möglichst eine Punktebewertung der Varianten, ermöglicht weitere Festlegungen und gibt Aufschluss, welche Varianten weiterverfolgt werden sollten.

 

Kostenherleitung 

Die Kostenherleitung erfolgt über die KFA-Methode. Über Ausstattungsprofile der Räume werden dem Einzelraumprogramm Flächenkostenkennwerte zugewiesen. Liegt nur ein Flächenrahmenprogramm vor, werden Flächenkostenkennwerte aus vorherigen Projekten genutzt, um einen Kostenkorridor abzuleiten. Eine Verifizierung erfolgt über Kostenkennwerte nach Baukosteninformationsdienst und über spezifische Referenzprojekte. Zusätzlich können vorangegangene Projekte des Bauherren Aufschluss über die tatsächlich realisierten Qualitäten geben. Für kritische Bereiche können die Kosten auf der zweiten Ebene der DIN 276 die Kostensicherheit erhöhen. Die Indexierung erfolgt auf Grundlage des Projektzeitplans.

 

Projektzeitplan

Der Projektzeitplan stellt die in der Machbarkeitsstudie definierten Bauabschnitte und Einzelprojekte in Abhängigkeit zueinander in einer Zeitabfolge dar. Planungszeiten, Rohbauzeiten und Ausbauzeiten sind ausgewiesen. Die Inbetriebnahme hochtechnischer Bereiche sowie Gremientermine werden hierbei gesondert aufgezeigt. In Verbindung mit der Kostenherleitung erfolgt die Mittelflussplanung innerhalb des Projektzeitplans, sodass der Mittelabfluss mit dem Wirtschaftsplan des Bauherren abgestimmt werden kann.